CLICK ON THE DOWNLOAD BUTTON TO GET YOUR FREE HOME DESIGN GUIDE
DOWNLOAD NOW!Designing a luxury custom home in Perth demands more than creativity. It requires strategic thinking, financial clarity, and disciplined architectural leadership.
As a Luxury Home Architect Perth, we guide each project through a structured, cost-aware process that aligns vision, site conditions, planning constraints and construction investment from the outset.
Our method reduces risk, protects design integrity and ensures your home performs beautifully — spatially, environmentally and financially.
Before architectural expression begins, we establish certainty. This structured approach ensures your luxury custom home in Perth is grounded in strategy.
Every luxury residence begins with clarity.
This stage establishes the strategic foundation of your home:
For sloping sites, coastal properties and constrained urban blocks in Perth, early intelligence is critical. We identify opportunities and risks before design progresses.
This stage ensures your luxury home is grounded in strategy — not assumption.
Luxury architecture must be validated before it is elevated.
In this stage, we translate the brief into early spatial diagrams and massing studies to test:
Importantly, this stage provides early budget alignment.
Through preliminary cost input and collaboration with our builder, we validate your concept early in the architect-led design & build method to determine if it aligns with your anticipated investment — before full design development begins.
For clients seeking a luxury home architect in Perth, this stage provides confidence and clarity at minimal initial commitment.

With feasibility confirmed, the architectural identity is formed.
This is where the home’s character emerges through:
Spatial flow, natural light, and passive solar design principles are integrated from the outset — ensuring cohesion, not separation.
For high-end custom homes, this integration is essential to achieving quiet sophistication and timeless design.

Luxury homes require strategic navigation — not reactive compliance.
As an experienced luxury home architect in Perth, we approach planning strategically.
Our strategic planning and approvals ensure design integrity — a key reason to see why clients choose an architect over a designer.
Rather than simply lodging documentation, we:
For coastal and sloping sites in particular, careful approval management protects both timeline and architectural integrity.
Our objective is to minimise delays and maintain momentum.

Architectural ambition must progress alongside financial intelligence.
In this stage, the design is refined with structured cost alignment. Working in collaboration with trusted construction professionals, we:
Unlike traditional design processes that separate architecture from cost reality, our approach integrates both.
This protects your overall investment while maintaining design quality.

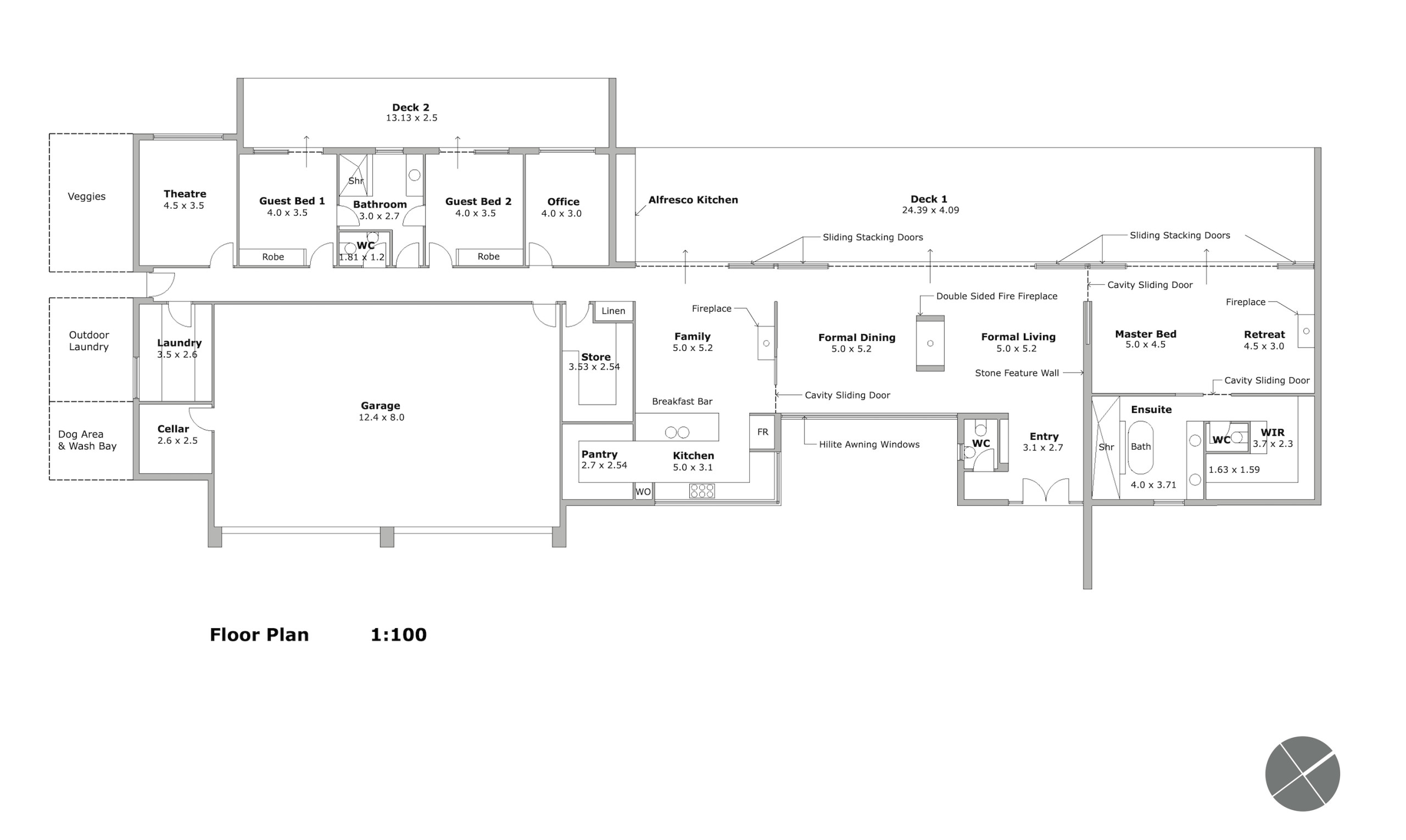
Luxury is defined in the detail.
We develop a fully integrated interior architecture strategy including:
Interior architecture is embedded within the core design through integrated interior architecture and not treated as an afterthought, creating refined cohesion throughout the home.
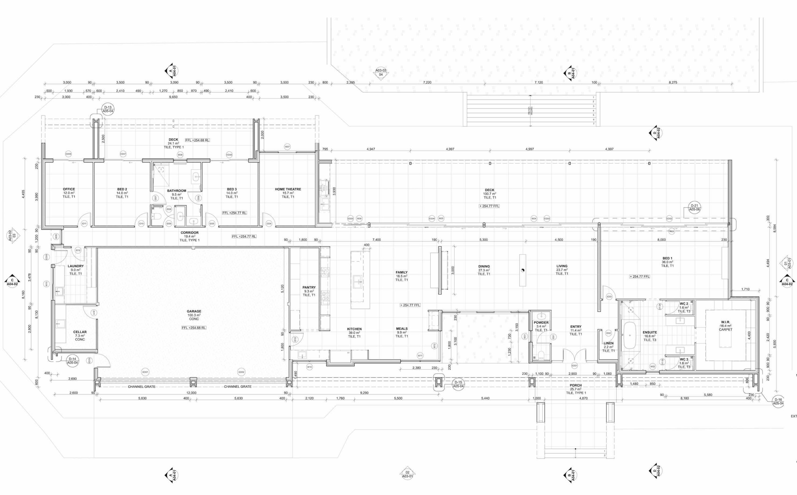
Precision documentation is critical for high-value homes.
We prepare comprehensive construction documentation and coordinate:
Complexity is resolved before construction begins, reducing uncertainty and safeguarding build quality.

During construction, we maintain design leadership.
Whether delivered through our architect-led Design & Build structure or in collaboration with a selected builder, we:
This structured oversight ensures the completed home reflects the architectural vision established at the outset.
Designing and building a luxury home in Perth involves:
Our structured process provides:
For clients seeking a luxury home architect in Perth, this disciplined structure delivers confidence.
Our approach is suited to clients who:
If you are considering a bespoke residence and are searching for a luxury home architect in Perth who offers clarity, strategic thinking and integrated delivery, we welcome an initial consultation.
Your home deserves structure, intelligence and architectural integrity from day one.
If you are ready to begin your luxury home journey, you can book a consultation today.
